Município lança concurso para obra do Jardim Ferreira da Costa – Venda do Alcaide
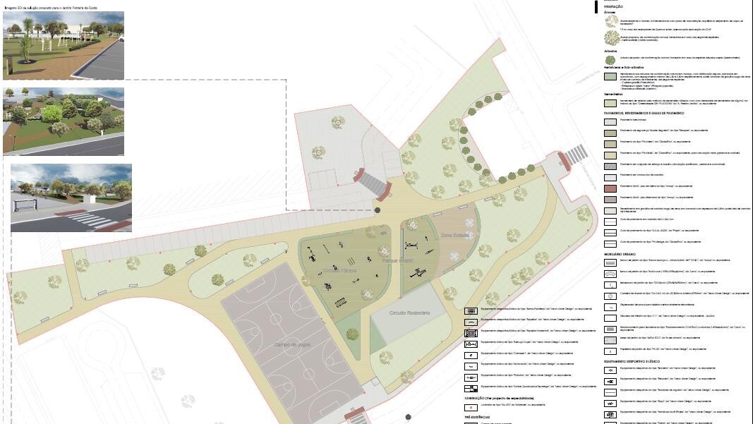
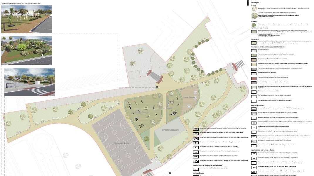
O Município de Palmela lançou o concurso público para a intervenção no Jardim Ferreira da Costa, em Venda do Alcaide.
Com um preço base de 197.970 euros, a empreitada engloba trabalhos de paisagismo, iluminação pública, rede de rega e drenagem de pluviais.
Pretende-se qualificar as valências de equipamento desportivo e de espaço de jogo e recreio e melhorar as condições de estada e de encontro de gerações.
Inclui a criação de um percurso pedonal e ciclável, a instalação de novo equipamento e mobiliário urbano e a reformulação do parqueamento automóvel, prevendo o carregamento de veículos elétricos.
A intervenção prevê ainda melhorar a ligação pedonal e ciclável à estação de caminho-de-ferro e ao transporte público rodoviário, através da eliminação de barreiras.